RESERVED! 2-bedroom 2-bathroom apartment with private solarium, 2 garage spaces, communal pool
Description
A superb opportunity to acquire a top-floor 2-bedroom, 2-bathroom west-facing apartment with private solarium and not one but TWO private garage spaces!
The price is very competitive, it´s exclusive to Villas Fox, and like most top-floor apartments in San Miguel, it´s sure to be very popular!
The building has a lift which services the solarium belonging to this apartment, the garage, and all floors in between.
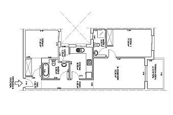
The apartment itself comprises lounge-dining area, balcony, main bedroom with en-suite shower room, separate kitchen with utility room, family bathroom and second bedroom. It is bright and spacious and is ready to move into! The solarium in particular will allow you to make the most of our fantastic climate - nearly every day can be barbecue day if you want!
The apartment benefits from one air-conditioning unit (hot/cold) in the lounge. Sold fully-furnished. Walking distance to all amenities in this increasingly popular town, just a 15 minute drive to beautiful white sand beaches!
This fantastic home is offered for sale by Villas Fox, having been appointed directly by the owners. We have by far the best selection of properties in the San Miguel de Salinas area. Our office is on the San Miguel ring road (Ronda Oeste) between the Repsol petrol station and the Masymas supermarket.
San Miguel de Salinas
San Miguel de Salinas is a very popular Spanish town just 15 minutes drive from the beaches of Mil Palmeras, Campoamor, Cabo Roig, La Zenia, Torrevieja, La Mata, Guardamar etc and surrounded by beautiful countryside which includes citrus and almond groves and the national park of Sierra Escalona right on our doorstep. You can walk and cycle for miles along the canal which runs right next to the town.
There are a great variety of bars and restaurants, both Spanish and international (the annual tapas run event is very popular!). If you are looking for a holiday destination or a place to live all year round, San Miguel is a great choice as it has all amenities (excellent primary and secondary schools, banks, health centre which never closes, 3 pharmacies, large outdoor swimming pool, football and athletics stadium, 5-a-side football pitch, tennis courts, padel courts, basketball courts, petanca, crown green bowls etc) and maintains the same rhythm throughout the year (ie not too busy in the summer, and not too quiet in the winter).
The pace of life is gentle and relaxing, and prices in the bars tend to be more reasonable than the coast. The weekly Wednesday street market is a great opportunity to stock up on locally grown fresh fruit and vegetables, hams, cheeses, olives, clothes and shoes etc, before having a drink and tapas in one of our friendly tavernas!
There is a good local taxi service and buses run several times daily to Torrevieja, Orihuela and Murcia. Alicante and Murcia airport are both approx 40 mins drive away. Internet services are generally fast (fibre-optic) and reliable. San Miguel is a place where you can enjoy a taste of traditional Spanish life and culture, whilst being close enough to the coast to enjoy all the great things the Costa Blanca has to offer. ¡Bienvenidos a San Miguel de Salinas!

Basic Information
Parking Information
Building Information
Land Information
Amenities
Neighborhood
8 minutes
12 minutes
9 minutes
12 minutes
6 minutes
5 minutes
3 minutes
3 minutes
21 minutes
15 minutes
1 minutes
38 minutes
24 minutes
24 minutes
7 minutes
13 minutes
1 minutes
14 minutes
Additional Information
Sorelle Fox
| Agent Photo |
|
| Address | C/Pablo Picasso 9, San Miguel de Salinas |
| State/Province | Alicante |
| Country | Spain |
| License | RAICV 1430 |
|
Phone:
|
+34 965 720 198 |
|
Mobile:
|
+34 616 508 663 |
|
Facebook:
|
https://www.facebook.com/villasfox |

